TRC-RT (Rooftop Commercial Applications) Total Recovery for All Climates

Energy Recovery Ventilators

TRC-RT Model

Model Features

  • MERV 8 filters (MERV 13 options available)
  • Airflow range 166–1853 cfm
  • TRCe models equipped with on-board potentiometer for easy speed variation
  • Transformer/relay package allowing simple on/off control
  • Access doors for easy maintenance
  • Fully insulated case
  • Large cores for higher efficiency
  • No condensate pan or drain required
  • AHRI certified for performance
  • CETLus Listed for electrical safety
  • An industry-leading ten-year warranty for the static-plate core, two-year warranty for commercial ERVs
  • This product meets the requirements of Buy American (2009) and Build America, Buy America (BABA), as part of IIJA (2022) Download letter here

AHRI cETLus   BABA-ACT

Model Overview

S&P USA Ventilation Systems energy recovery ventilators (ERVs) provide a sustainable ventilation solution. The static-plate, crossflow core of these ERVs separates the outgoing, polluted indoor airstream from the incoming fresh airstream while transferring total energy (heat and water vapor) between the two. This prevents the mixing of airstreams and the transfer of pollutants across partition plates. In the winter, the ERVs preheat and humidify the cold, dry outside air using the warm interior air. During the summer, they precool and dehumidify the warm, humid outside air using the air-conditioned interior air.

These ERVs also moderate temperature and humidity extremes, creating a comfortable indoor environment. The unique moisture transfer capability of our core also eliminates condensation and frost build up in most applications, without requiring mechanical or electrical defrost systems. This results in higher heat recovery efficiencies, easier installation, and more reliable operation.

Warning Icon WARNING: This product can expose you to chemicals including formaldehyde, which is known to the State of California to cause cancer. For more information go to www.P65Warnings.ca.gov.

10-year core warranty, 2-year unit warranty

Airflow Performance for TRCeN500RT MOTOR 1P/208-230V

Airflow (CFM) External Static Pressure (Inches Water Column) Unit Power Consumption (Watts)
133 1.77 265
204 1.60 310
259 1.43 342
322 1.10 371
398 0.42 388
431 0.00 387

Airflow Performance for TRCeN800RT MOTOR 1P/208-230V

Airflow (CFM) External Static Pressure (Inches Water Column) Unit Power Consumption (Watts)
200 2.78 566
295 2.72 658
444 2.48 791
495 2.37 832
580 2.15 894
675 1.74 900
770 1.53 900
865 0.97 900
960 0.58 900
1100 0.00 900

Airflow Performance for TRCe 1200RT-230-1P

Airflow (CFM) External Static Pressure (Inches Water Column) Unit Power Consumption (Watts)
375 2.07 710
481 1.93 765
588 1.78 814
604 1.41 859
800 1.42 899
906 1.22 933
1013 0.99 963
1103 0.74 987
1225 0.46 1006
1378 0.00 1024

Airflow Performance for TRC 1600RT-230

Blower RPM 0.25 0.50 0.75 1.00 1.25 1.50
SCFM BHP SCFM BHP SCFM BHP SCFM BHP SCFM BHP SCFM BHP
1150 1125 0.6 900 0.5 639 0.5 - - - - - -
1200 1200 0.7 986 0.6 739 0.5 - - - - - -
1300 1381 0.9 1191 0.8 973 0.7 721 0.6 - - - -
1400 1582 1.1 1411 1.0 1090 0.9 977 0.7 725 0.6 - -
1485 1715 1.3 1560 1.2 1386 1.1 1187 0.9 960 0.8 705 0.7

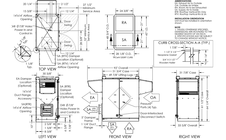
Dimensions for TRC1200RTH-230-3P/TRCe1200RTH-230-1P

Dimensional drawing for the TRC1200 model.

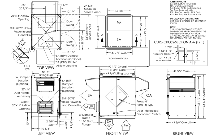
Dimensions for TRC1200RTV-230-3P/TRCe1200RTV-230-1P

Dimensional drawing for the TRC1200 model.

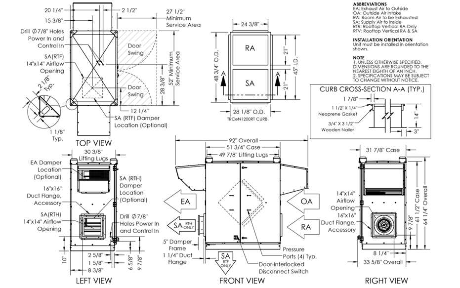
Dimensions for TRC1600RTH-230

Dimensional drawing for the TRC1600 model.

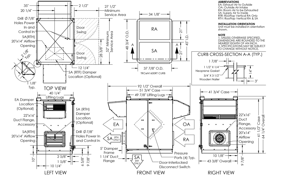
Dimensions for TRC1600RTV-230

Dimensional drawing for the TRC1600 model.

Dimensions for TRCeN500RTH-230-1P

Dimensional drawing for the TRC1600 model.

Dimensions for TRCeN500RTV-230-1P

Dimensional drawing for the TRC1600 model.

Dimensions for TRCeN800RTH-230-1P

Dimensional drawing for the TRC1600 model.

Dimensions for TRCeN800RTV-230-1P

Dimensional drawing for the TRC1600 model.

Additional accessories are available for certain products. Contact your S&P Representative for more information about these accessories.

Electrical Accessories

SPBACNETFC-W BACnet Fan Control Supplement IOM
SCO2-W Carbon Dioxide Control - Wall Mount IOM
SMC-C MOTION OCCUPANCY CONTROL CEILING IOM
SMC-W MOTION OCCUPANCY CONTROL WALL IOM
SHW-20 Dehumidistat Submittal
STC7D Digital Time Clock IOM

TRC-RT Accessories

147599 TRCeN500RTH Rectangular 12" X 12" Flange Kit (2 per kit)  
147600 TRCeN800RTH Rectangular 14" X 14" Flange Kit (2 per kit)  
147435 Rooftop Roof Curb (TRCEN500RT)  
147384 Rooftop Roof Curb (TRCEN800RT)  
1XHECC TRCEN500RT/TRCEN800RT Tie Down Clip Kit  
190101 Rooftop Roof Curb (CURB1.5) (TRC 1200RT)  
1.5XHECC TRC 1200RT Tie Down Clip Kit  
135613 Rooftop Roof Curb (CURB2X) (TRC1600RT)  
2XHECC TRC1600RT Tie Down Clip Kit  
Commercial MERV Filter ERV Filters for TRC1200 thru TRC1600 Submittal

Product Line Overview
Total Recovery Ventilator Brochure
Submittal (TRCeN500RT)
Submittal (TRCeN800RT)
Submittal (TRCe1200RT)
Submittal (TRC1200RT)
Submittal (TRC1600RT)
IOM (TRC1200RT)
IOM (TRC1600RT)

  • Balanced Ventilation
  • Fresh air/ Clean air/ Indoor Air Quality (IAQ)
  • Energy Recovery